Neubauvorhaben Mettmann – Metzkausen
1 Familienhaus / Villa
ca. 200 m²
Wohnfläche
4
Zimmer
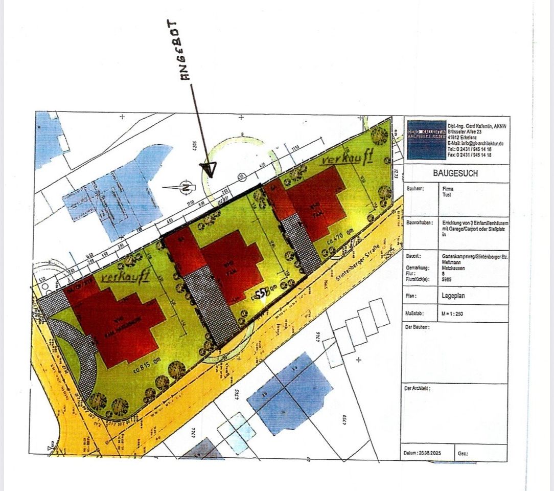
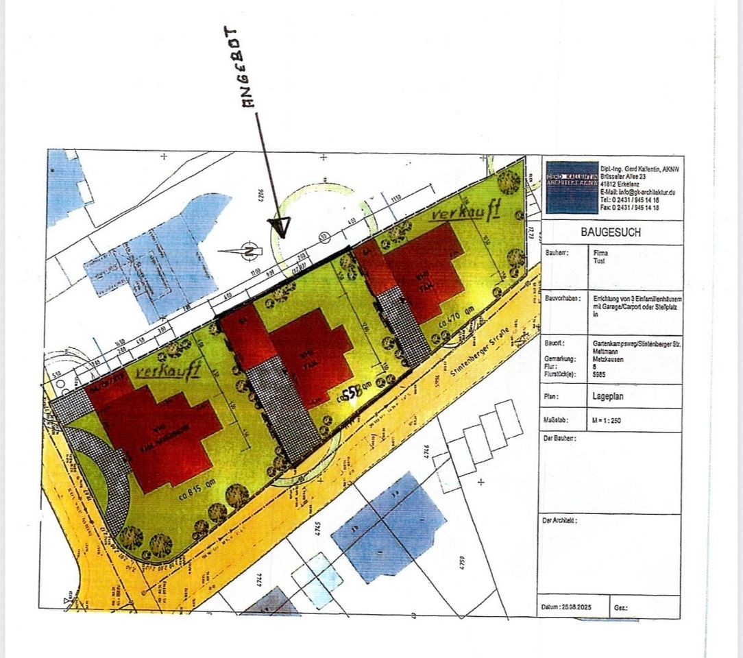
ca. 558 m²
Grundstück
2026
Baujahr
4
Schlafzimmer
2
Badezimmer
890.000 €Kaufpreis
Einfamilienhaus zum Kauf
40822 Mettmann–Mettmann – Metzkausen
Zum Kauf
Objekt-Nr.
64312-72475
Käuferprovision
3.57 % inkl. USt.
Die Immobilie
Kaufpreis
890.000 €
Wohnfläche
ca. 200 m²
Zimmer
4
Grundstücksfläche
ca. 558 m²
Etagen
2
Schlafzimmer
4
Badezimmer
2
Baujahr
2026
verfügbar ab
nach Fertigstellung
Stellplatz-Details
Freiplatz
Anzahl
1
Garage
Anzahl
1
Energieausweis
Baujahr
2026
Energieausweis
ohne, liegt zur Besichtigung vor
Heizungsart
Zentralheizung
BeschreibungBauvorhaben: Hier entsteht in individueller Planung ein Einfamilienhaus mit ca. 120 – 200 m² Wohnfläche in gehobener Bauausführung.
Der Interessent stimmt mit dem erfahrenen Architekten seine Wunschplanung ab. Bei der namenhaften Baufirma planen Sie Ihr Wunschhaus. Eine seltene Gelegenheit Ihre Traumvilla zu erstellen.AusstattungGrundstücksgröße: insgesamt ca. 558 m²
Etagenzahl: 2
Zimmer: 4 bis 6LageDie reine Wohnstraße Gartenkampsweg / Stintenbergerstraße befindet sich in verkehrsberuhigter Wohnlage im beliebten Ortsteil Mettmann Metzkausen. Die Nachbarbebauung besteht überwiegend in gewachsener Wohnlage, Bebauung mit Einfamilienhäusern bzw. Eigentumswohnungen in Gebäuden bis zu 2 ½ geschossiger Bauweise. Ebenso hervorzuheben ist die gute Infrastruktur und die Verkehrsanbindung dieser Wohngegend.SonstigesKaufpreis je nach eigenen Ausführungswünschen und gewünschter Wohnfläche ab 800.000 EUR
KP GR und Gebäude 890.000 EURO bei gehobener Ausführung und eigener Grundrissentwicklung. Wfl. 120-200qm möglich.
– Im Alleinauftrag –
Haftung: Wir bemühen uns alle Angaben so vollständig wie möglich zu machen. Da wir uns hierbei auf die Angaben der jeweiligen Verkäufer verlassen müssen, können wir keine persönliche Haftung übernehmen.
Courtage: Die anteilige, für den Käufer anfallende, Nachweis- bzw.Vermittlungsgebühr beträgt 3,57 % inkl. der gesetzlichen MwSt.des Kaufpreises.
Finanzierung: Durch laufende Zusammenarbeit mit namhaften Finanzierungs-instituten sind wir stets in der Lage, Ihnen eine auf Ihre persönlichen Verhältnisse abgestimmte Finanzierung zu ermöglichen. Für die zusätzliche Finanzierungsbearbeitung wird von uns keine Kostenberechnung vorgenommen.